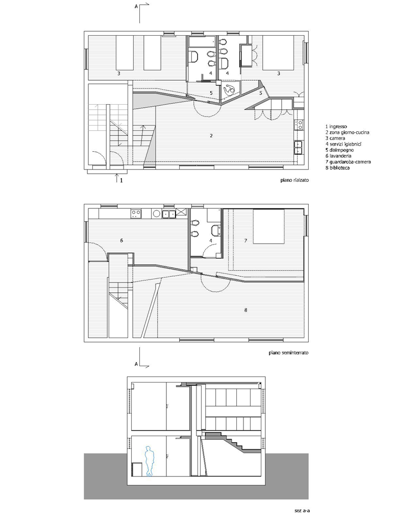
Casa brt

 

località: marghera

anno: 2004

progettista: marco ferretto con paolo ceccon

superficie: 160 mq

 

 

 

 

 

                

 

 

 

 

                                                              

 

 

 

 

 

 

 

 

 

 

 

 

 

 

 

 

 

 

 

                

foto di Nicola Belluzzi

 

 

 

 

 

 

 

 

 

 

 

 

 

 

 

 

 

 

 

 

 

home